back to portfolio

architecture series

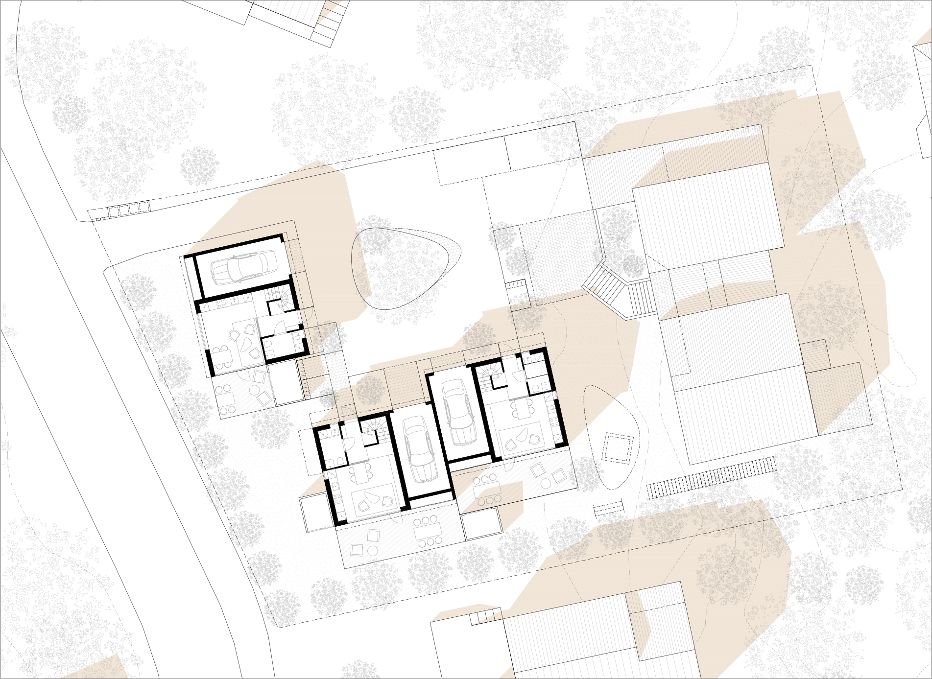
site study and framework plan, Helsinki (2024)

The site study and framework plan examine options for sensitive infill development within Helsinki's eastern villa district, located in the city's maritime area. The plan positions a semi-detached house and a detached house in front of an existing 1950s villa and its later extension, creating a shared courtyard. These three compact, two-storey pitched-roof homes complement the neighbourhood's scale and character. Their strategic placement maintains privacy while providing each residence with its own terrace, and the arrangement highlights a spacious communal yard outlined by lush planting – upholding the area's character.

Previous
Previous

"Villa"

Next
Next

summer house